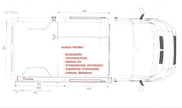
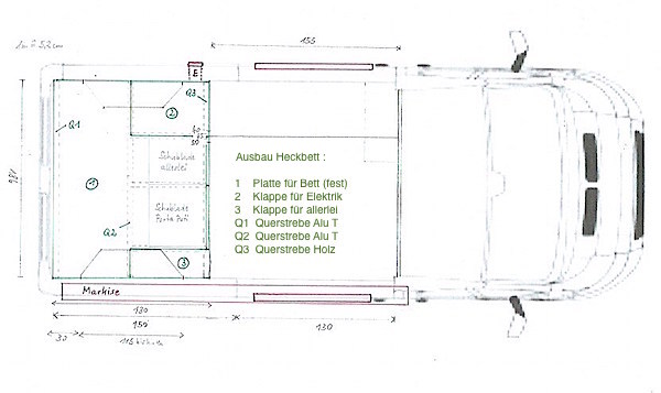
Jumper L2H2 Ausbau

 
Erste Skizzen, wie er ausgebaut werden soll :